
163㎡質感現代風,品味灰調的優雅

【項目信息】
地址:盛世天城
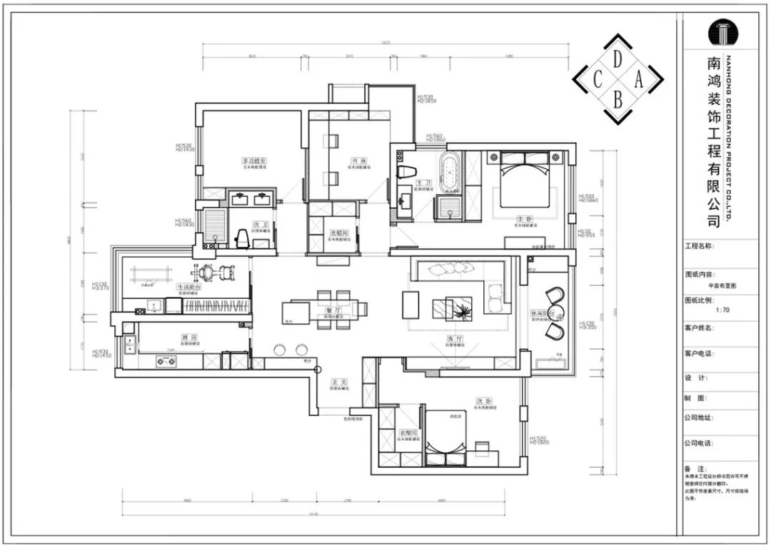
城市:中國 寧波
戶型:三室兩廳
面積:163㎡
風格:現代風格
設計施工:浙江南鴻裝飾
作品前言 本案業主是我們南鴻的老客戶,空間以灰色調為主,棕灰色科技木皮木作使得整體空間沉穩而大氣,軟裝局部選擇亮色點綴,頂面選擇無主燈吊頂,簡潔、干練,讓家呈現一種自然的舒適。 #戶型設計 實景呈現 >>客廳 硬朗沉穩的客廳空間,方正的布局結合利落線條,灰色的中性有助于消解外界的煩躁、收斂繁亂思緒。 黑色的主沙發在場域中形成一種重力感,牢牢地將靜默的基調扎入空間之中。一些綠意的點綴,帶來更多清新和親切的感受。 通鋪的地磚與頂面無主燈設計延伸視覺效果,將開放的區域連接起來,動線無比流暢。 >>餐廳 餐廳處于公區域的中心地帶,連貫起各個不同的功能區。與廚房和生活陽臺之間均以玻璃移門相隔,光線也得以自由流通。依靠一側墻面設計休閑吧臺,生活的小情趣有了一個安放角落,可以存起人生的滋味。 島臺作為功能性補充,讓備餐、聚會等變得高效便捷。現代極簡風格的燈飾融入當代潮流的理念,墻面的紅色裝飾塊則在抽象形式上呈現了一種東方文化的雅正。 空間的局部做一個拱形框構的裝飾景觀,這樣在日常不經意的走動中,也能感受到人文和藝術的美。 >>臥室 輕和的色調與溫柔的燈光營造舒緩安穩的睡眠環境,素樸得讓人安心。 >>書房 家存在的意義只與居住在其中的人有關。書房的布置上我們綜合業主的需求,將其打造為辦公、閱讀、娛樂等多種功能集于一體的場所。除了電競椅之外,業主還專門安裝了賽車游樂模擬設備,足證其游戲發燒友的身份啦~ >>衛生間 對于居者來說,功能的全面往往就代表最大的舒適。衛浴雖并沒有多么寬敞,但該有的設施一點都不含糊,淋浴間、浴缸,追求速度還是追求享受隨性選擇。臺盆柜在靠近馬桶的一面空出收納的區域,整個空間給人的體驗感其實正是靠這些點滴的細節慢慢累積起來的。












免費
免費申請戶型規劃
專屬設計師免費1對1全程服務
已經有3782人申請
24小時免費咨詢電話
400-8800-618
你家預算
108080元