
安基名府 | 戶庭無塵雜,虛實有余閑

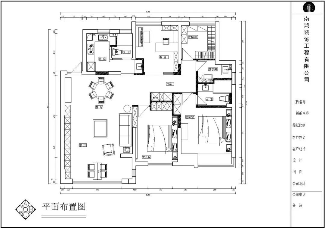
項目信息 / 地址:安基名府 城市:中國 寧波 戶型:四室兩廳 面積:137㎡ 風格:新中式 設計施工:浙江南鴻裝飾 本案為糅合古典中式與現代風格特點的新中式設計,以靜的藝術來記錄生活的美。空間用材質和光影作畫,沉靜的木材搭配大理石和巖板,將自然的屬性融入居室,極具人文性與包容感。 設計要點 / Key Points Of Design ①玄關、餐廳、客廳、陽臺在同一個空間,做了整體柜連接并實現功能。 ②餐廳的北面調整了廚房進門位置,使餐廳背景面更為完整。 ③因為胡桃木的家具給人的感覺比較厚重,所以柜子和木護墻用了兩個顏色搭色,延續木質家具溫潤質感的同時不讓空間過于沉重。 ④原結構的層高較低,還有幾個很低的梁,頂面的大塊面處理讓缺陷得以視覺弱化。 ⑤給讀高中的女兒房用了很甜美的糖果色,空間因使用者的不同而呈現自己的個性。 #戶型設計 客廳 Living Room 設計師所做的思路,并不限于場景與物件的雕琢,而是將重心放在如何實現環境與空間、藝術與生活的微妙和諧上。 客廳納進陽臺,光線大量而勻質地介入,空間自然純粹,質感與細節并存。頂面做簡潔的無主燈設計,燈帶有效烘托靜謐氛圍。 沙發背景的深色巖板與細節的金屬色為空間注入高級的輕奢質感,擱板收納設計讓視覺更顯輕盈。 包進的陽臺做男主人的休閑品茗區,一盞茶,幾縷香,盡享雅致和詩意。 餐廳 Dining Room 客餐廳打通,強化空間的流暢度與通透感。 “戶庭無塵雜,虛室有余閑”,正如陶淵明所描述的田園生活那樣,不被世俗繁雜所打擾,有的是自由時間來享受當下生活,盡情揮灑意趣。 過道 Corridor 過道融入西廚的常用設備,為廚房釋放更多操作空間。 臥室 Bedroom 主臥透過雅灰的色調投射出溫潤有度的氣質,床頭背景墻選擇山巒紋理的墻布裝飾,讓寧靜簡雅的氛圍更加濃郁。 女兒房背景墻采用甜美的糖果色,大膽活力,極富現代時尚感,再加上灰色雅致床品的搭配,彰顯空間靈秀細膩的氣質。 書房 Study 木材與書籍仿佛是天生的一對,相配和諧,一道道自然紋理訴說著時光的智慧,捧書靜讀,不知不覺就能沉浸到無垠的精神世界~













免費
免費申請戶型規劃
專屬設計師免費1對1全程服務
已經有3777人申請
24小時免費咨詢電話
400-8800-618
你家預算
108080元