
三室改兩室,雙地臺做休閑區+茶室,獨居的生活就是這么任性自由!

“總有一日,我要在一個充滿陽光的早晨醒來,靜靜地聽窗外如洗的鳥聲,那是多么安適的一種蘇醒。”
--
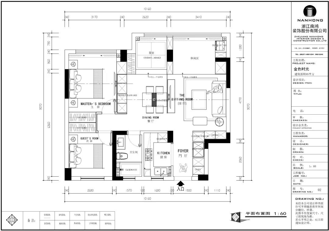
地址:金色時光 戶型:兩室兩廳 面積:89㎡ 風格:現代簡約 設計施工:浙江南鴻裝飾 ■ 關于作品 這是一套單身男業主的居所,由于是一個人居住,所以空間改動上比較靈活,原始三室戶型被改為兩室兩廳,公共區域盡可能打開。這樣一個簡約又隨性的家,一切都是恰到好處~ ■ 關于戶型 經典89方戶型,很方正,但是餐廳位置比較局促,采光不太理想。設計師犧牲了一個房間改造為餐廳,公共區域打開,并植入了比較多的鏡面元素,盡量改善室內采光。 玄 關 走廊型玄關,右側設置一組常規鞋柜,白木基底鋪墊柔和視感,底部留空放日常換的鞋物,中部可以擺一些自己喜愛的小件。 玄關相鄰廚房,為給其釋放一定空間,將冰箱、部分電器柜挪移至了外面。 玄關進客廳的轉角,順勢做了儲物柜,無把手設計十分干凈。過道口嵌一面頂天立地的鏡子,出門可在此檢視穿著,也在無形中放大空間。 客餐廳整體性很強,地面通鋪灰色大理石瓷磚,延續性紋理增加空間的縱深感。陽臺拆除隔門,包進室內打造出一塊休閑區,單層木質地臺界定出儀式感。 沙發背景墻以咖色皮質硬包組合木格柵,搭配上“熱情”的赭色沙發,軟硬材質、冷暖色調的和諧配比,構建簡單溫暖的舒適居住環境。 客餐廳以電視、電視柜與其后的定制鋁框灰玻作為隔斷,多重玻璃元素既保證了兩個空間的獨立性,也不影響自然采光入內,讓原本不算寬敞的公區域看上去視野開闊了許多。 說起獨自宅家的幸福感,自然少不得一個休閑區啦。兩把單椅搭配小巧茶幾,空閑時光看看書、聽聽音樂,享受生活其樂無窮! 白日忙碌,傍晚回到家就獎勵自己一頓豐盛的晚餐吧,把所有煩惱都吃進肚里~ 餐邊柜大臺面可以將咖啡機、面包機等小電器都安置在此,上方吊柜用來擺放杯子、茶具,長虹玻璃的美感十分賞心悅目。再搭配暖黃的燈光,用餐時分變得更加溫馨和甜蜜。 餐廳陽臺同樣包進改造為了茶室,雙層木質地臺抬高,以茶會友,快樂翻倍! 廚房布置為動線更簡短的U字形,灰白配色顯得干凈利落,純平機身的吸油煙機自帶固定隔煙屏,隔煙置物兩不誤,實用與美觀在此處完美融合。 主臥,色彩搭配與家具造型以現代簡約為基礎,低調柔和的色澤展現出舒適又有腔調感的氛圍。 次臥背景墻融入石膏線,讓空間帶上了優雅的情調,床頭背后砌筑出的窄臺面可隨手放置一些小物件,增強實用性。 對于戶型中唯一一個衛生間設計,設計師在遵從空間格局的基礎上進行了簡約化處理,實現功能性與審美性的統一。






















免費
免費申請戶型規劃
專屬設計師免費1對1全程服務
已經有3777人申請
24小時免費咨詢電話
400-8800-618
你家預算
108080元