
姚江灣139㎡四居室設計,沉穩高級灰色調令人欲罷不能!

本案為139方現代風格四居室設計,業主是一對中年夫妻,兩人都從事教師工作,不喜歡奢華的風格而更追求家的簡約和大氣,希望整個設計能在滿足實際需求的同時重點突出家居質感。
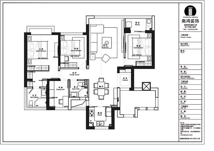
戶 型 圖

客 廳

客廳以中性灰為主基調,地面通鋪黑色石紋地磚,電視背景墻選用大理石和木飾面結合,搭配木質電視柜,與沙發背景形成呼應。

沙發背景墻選用深色現代KD板,黑色軟皮沙發搭配組合型茶幾,一旁的愛馬仕橙單人沙發提亮空間,讓室內滿滿都是簡約時尚的氣質。

客廳望向過道視角。明艷的抽象裝飾畫落地擺放,增添藝術元素的同時打破單調。沙發旁的邊幾造型小巧別致,十分美觀。

客廳望向餐廚視角。客餐廳之間沒有阻礙,擴大了空間感。

▲客廳細節圖
餐 廳

餐廳以現代風餐桌椅搭配素白墻布裝飾的背景墻,一側設計了實木餐邊柜作收納功用。廚房與餐廳相鄰,采用黑框玻璃移門作為隔斷。
廚 房

廚房面積不大,卻足夠明亮通透,U型的操作臺設計令下廚動線更為流暢。簡凈的基底下,木色櫥柜搭配潔白墻磚,整體色調輕盈。
主 臥

主臥背景墻以深色木板和淺色墻布結合的方式,點綴上兩盞現代壁燈,搭配灰色的窗簾,低調而不失內涵,淺色木地板顯得溫潤、舒適。

次 臥

次臥陳設簡單,矮背床+書桌椅設置滿足居住者的基本使用需求。高級灰色調的背景墻簡單不加修飾,灰粉的窗簾布透出一股清新恬靜的氣息。
衛 生 間

衛生間的墻地通鋪暖灰瓷磚,鏡柜和浴室柜均設計了開放層架,顏值高的同時收納性也強。淋浴間的墻面還專門開辟了壁龕,取放沐浴物品非常方便。
| 地址:姚江灣二期
| 面積:139㎡
| 風格:現代
| 造價:26萬
| 設計施工:浙江南鴻裝飾
免費
免費申請戶型規劃
專屬設計師免費1對1全程服務
已經有3776人申請
24小時免費咨詢電話
400-8800-618
你家預算
108080元