
水景城 | 250方大平層作六居室設計,這空間利用率,杠杠的!

本案為250方六居室設計,風格定位在輕奢,業主一家為6口人,2個孩子,2個老人各需一間房,他們希望自己的家看上去高雅又有品質。設計師在有限的空間布局內盡情施展細膩思考,著力為業主呈現出理想生活的狀態。
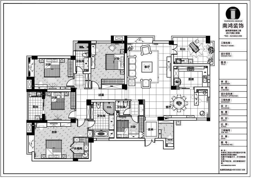
戶 型 圖 設計說明: 1、進門處拆除左墻,使父親房和客衛干區面積增大,并改變客衛進門位置,使得餐廳更加完整; 2、過道上的走入式衣帽間改成了兩個背靠背的柜子,不僅使房間增大,還多了一個書柜的空間; 3、母親房原本的房門直對過道,后更改了位置; 4、主臥改了衣帽間的朝向和主衛的墻,在保證空間的情況下滿足了業主儲物需求。 客 廳 客廳的地面選用深灰色拋釉磚,大理石材質的電視背景墻與之呼應。大面積藍色系的運用,使客廳空間透出清爽自然的氣息,背景墻、吊頂和家具中都加入了金色元素,透出優雅輕奢的味道。 沙發結合了皮革、布藝和絨面,溫暖舒適。桔色的抱枕作為跳色,為這方空間注入了活力和趣味,角落里的大盆綠植增添生氣。 客廳望向玄關視角。通透的空間感與視覺感令人無比舒適~ 餐 廳 餐廳延續了客廳的硬裝風格,與客廳之間毫無阻礙,動線流暢,開敞的空間還能帶給居住者更多有關美食的想象。 餐廳背景僅用一幅簡約藝術畫裝飾,兩側設計入墻式餐邊柜,實用且大方,并利用后陽臺的位置開辟了一個休閑吧臺的空間。 明黃的花色在這個純凈的視界中散發出鮮明而絢麗的審美意涵,讓屋主在芳香中品嘗人生百味~ 主 臥 主臥背景墻風格與客廳相似,又借暖色的床品顯現出空間個性,淺色木地板顯得溫潤而舒適。房間中還專門擺放了床尾凳,從細節上進一步提升空間品質。 兒 童 房 兒童房背景墻選用淺藍色墻漆裝飾,搭配多彩的窗簾和純白的高背床,簡約中勾勒出活力色彩。 兒童房進門一側多放了一個書柜,結合另一側的學習區,充分滿足孩子讀書時的日常需求。 衛 生 間 次衛一,做了干濕分離,暖灰色的墻磚與地磚呼應,視感舒服,高級灰的浴室柜挑空設計并點綴上金屬細節,時尚而前衛。 次衛二,采光充足,光線明亮,深藍的衛浴柜搭配金色拉手,顏值滿分。 | 地址:水景城豪苑 | 面積:250㎡ | 風格:輕奢 | 設計施工:浙江南鴻裝飾














免費
免費申請戶型規劃
專屬設計師免費1對1全程服務
已經有3776人申請
24小時免費咨詢電話
400-8800-618
你家預算
108080元