
126㎡現代 | 寧靜脈絡,優雅至性

項目信息
/
地址:臻華府
城市:中國 杭州
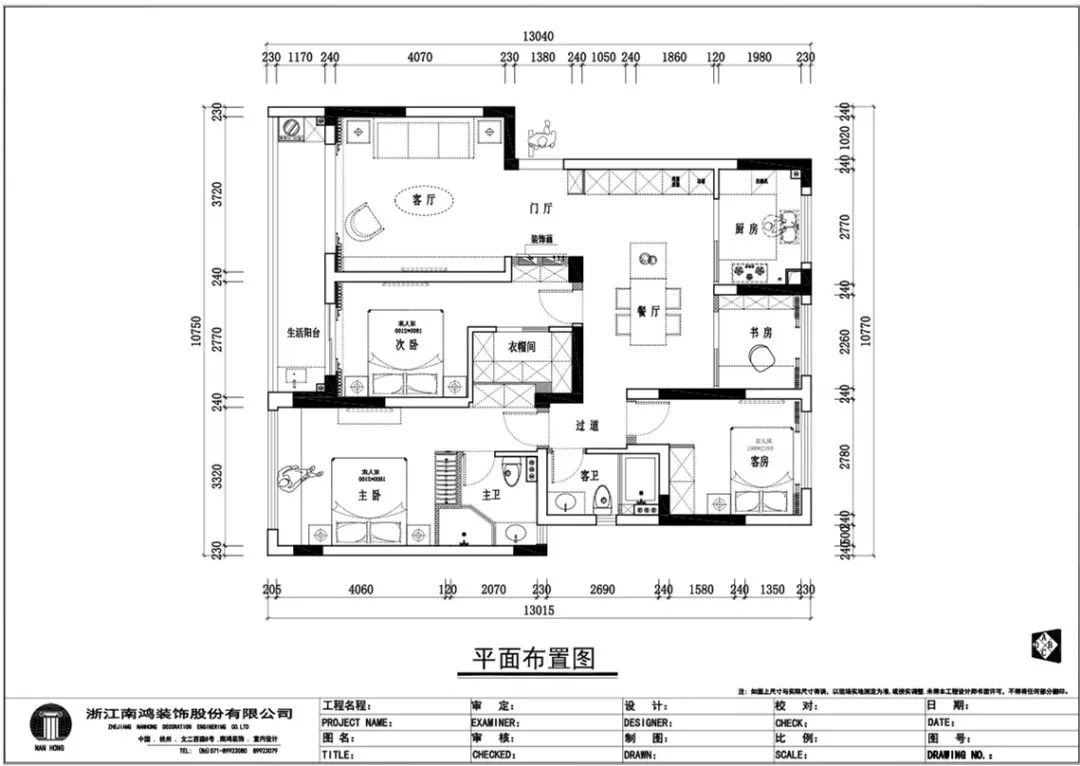
戶型:四室兩廳
面積:126㎡
風格:現代風格
設計施工:浙江南鴻裝飾
本案是以高級灰和木色為主搭建的現代風格設計,從空間,到物品、材質,都呈現著穩重、內斂又極為優雅的氣質,用心構建的種種細節,為整個家提供了無可取代的情緒價值。 玄關 Hallway / 入戶門廳設計端景,結合了藝術畫和木飾面,簡約大方又足夠的穩重。天然木質紋理幫助撫平焦躁情緒,帶給居者獨屬的恬淡靜謐。 客廳 Living Room / 來到客廳。干凈直爽的線面搭建起簡潔的現代質感空間,色彩上具備一定的層次又沒有過多跳躍的符號,明朗、沉靜是空間的主性情。 客廳與生活陽臺連通,擁有充足的光線。沙發墻選擇皮質硬包背景,直來直往的線條展現硬朗的個性。電視背景墻則以木飾面呈現,相比起巖板大理石,更添了一份從容沉靜的氣質,并且與門廳也有視覺上的聯動,塑出一種平穩的流動感。 餐廳 Dining Room / 在調整戶型之后,餐廳面積得以擴大。開放通透的布局,讓陽光可以不受阻礙地關照到這里,區域更加的明亮大方。 餐廳與廚房相鄰,動線精簡流暢。島臺臺面底部設計有儲物空間,靠近餐桌一側則預留了插座,既方便聚餐,平時也可做水吧使用,功能相當強悍。橙色的餐椅增添溫暖的感覺,讓家的氛圍更加溫馨有活力。 廚房 Kitchen / 廚房整體以深淺色系上下搭配,呈現給人穩重、大方的舒適感受。 臥室 Bedroom / 幾間臥室均是以現代主義的簡約手法構建,高級灰的色調包含著寧靜,透露著低調。柔和安定的情緒逐層遞進,淺淺勾勒細部之美,素雅的格調成功打造出當代人居的歸屬感。
















免費
免費申請戶型規劃
專屬設計師免費1對1全程服務
已經有3776人申請
24小時免費咨詢電話
400-8800-618
你家預算
108080元