
216㎡現代意式 | 光影交織夢幻,設計沉淀優雅
項目信息
PROJECT INFORMATION
地址 | 傾城之戀
城市 | 中國 杭州
戶型 | 復式
面積 | 216㎡
風格 | 現代意式
設計施工 | 浙江南鴻裝飾
功能是空間布局最樸素的起點,而設計則能賦予空間更深層次的內涵,并折射出居者的生活態度與人生哲學。


本案男業主是一位優秀的民航機長,女業主則作為全職太太在家照顧孩子的飲食住行,兩人的性格都比較直爽,喜歡旅游和聚會,充滿著活力,生活也是如此有聲有色。
戶型解析 |

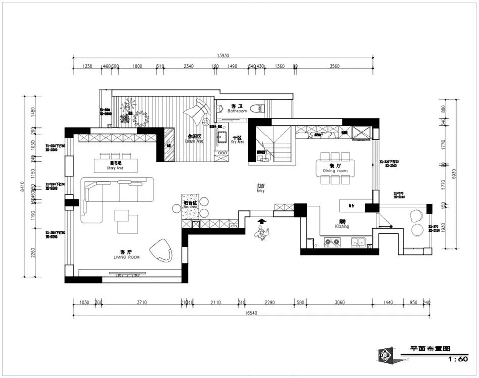
▲一層

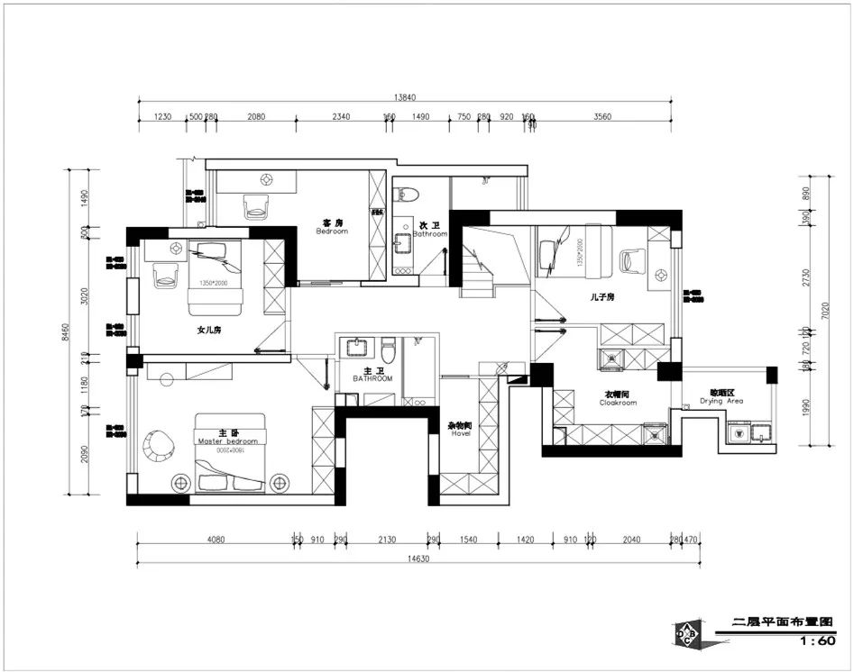
▲二層
①一層去掉了一個衛生間,原衛生間的位置改造為休閑區;
②廚房與餐廳中間用島臺相隔,將餐廚兩塊區域打通;
③原餐廳頂上本是挑空的,后來把樓板現澆起來后,二樓多做了一個臥室;
④二層一個小房間做衣帽間使用,并連接洗衣房,縮短家務動線。
實景呈現
CASE APPRECIATION
客廳 //

家中的吧臺設置在休閑區對出的位置,既拓展了場景功能,又可作為隔斷使用,入戶面對客廳也有了視覺上的緩沖。

區域分隔有序,空間依然保持連通,時尚的吧臺集功能與美感于一身,在空間中默默散發魅力。



寬敞明亮的客廳包進書房區,辦公、閱讀、休閑在此融會貫通,滿滿當當的書籍,無形中也為空間增添了更多的人文內涵。不加多余裝飾的吊頂加上無主燈設計,空間保持極致的簡潔,低飽和度的配色舒緩情緒,亦營造高級氛圍。

木色的墻面附著溫潤的質感,平靜卻蘊含有歲月沉蓄的力量。電視背景墻選擇進口巖板材質,低調地演繹華美格調。
餐廳 //


餐廚空間功能劃分利落而全面,大面積的隱形式柜體讓收納變得得心應手。西廚區融入常用的廚電,深色玻璃面與柜體色調形成深淺的對照,誕生更具張力的形態,也是家居美學的一種體現。
廚房 //

餐廚以島臺相隔,日常的下廚、上餐變得高效簡捷。莫蘭迪藍色調的櫥柜讓廚房空間變得柔和耐看。
樓梯 //




樓梯用雅酷的黑,結合巖板與玻璃扶手,成為空間中引人注目的存在。強而有力的現代式結構,糅合隱隱綽綽的燈光效果,也讓整個區域更加摩登和優雅。
休閑區 //

家庭休閑區,墻面涂刷水泥肌理感藝術漆,都市現代氣場愈發深刻。面向過道還做出了開放格收納,作為可愛小物件的展示。相鄰衛生間的干區使用吊鏡,巧借采光,空間感絕佳。
臥室 //


舒緩中性的色調和舒適的材質,讓臥室成為這個家最能令人感到放松的所在。從吊頂、背景墻漫溢而出的幽微光影,營造如夢如幻的入眠氛圍。

空間相對緊湊的情況下,設計師利用定制家具為其置入辦公、休憩和收納的功能,視覺上統一完整。
兒童房 //


柔和的杏粉搭建起溫馨的兒童房空間,設計以孩子的成長周期為基點,布設上靈活多變,學習、收納、梳妝等多種功能不一而足。
衛生間 //

衛浴空間用通體的石材鋪敘整潔清爽的視感,無論在色調或形態上都與整體的建筑形成高度統一。簡潔現代的風格,加之自然順暢的功能轉換,兼具實用性和靈活性,生活的從容呼之欲出。

上一篇:江上 | 時光清和,流年似夢
免費
免費申請戶型規劃
專屬設計師免費1對1全程服務
已經有3776人申請
24小時免費咨詢電話
400-8800-618
你家預算
108080元