
【衍新玉府】客餐廳一體化&主臥大套間,擁抱自由和美好!

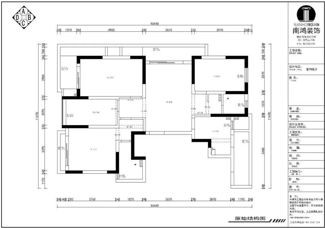
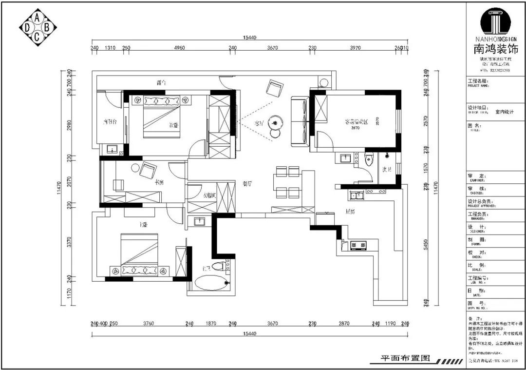
項目信息 / 地址:衍新玉府 城市:中國 杭州 戶型:三室兩廳 面積:145㎡ 風格:現代風格 設計施工:浙江南鴻裝飾 本案色彩上我們用了黑白灰及淺棕的木紋色搭配,局部柜體和家具用黑色點綴增加質感,整體以沉穩中性的架構為出發點,省去多余的裝飾,強化功能和實用,去表達生活的真切與從容。 房子是回遷房,原始戶型不能算好,客餐廳小,廚房和衛生間的利用率低,承重墻也比較多,不可大改,好在業主能夠接受套間的形式,局部改造后還是能讓人滿意的。 設計改動: ①去掉了客廳陽臺以增大客餐廳的面積,并做敞開式廚房,增設了吧臺; ②主臥設計為大套間,更改進門,把進門的過道改成了衣帽間和入戶鞋柜,并將一部分空間給到了主衛作為干區; ③次臥現階段作為父母房,僅更改了進門位置,但增加了一個衣帽間,過道設計出雜物柜增加儲物面積。 客廳 ∥ 客廳以白的底色凸顯明亮利落的氛圍,巖板、硬包、棉麻和木材等多種材質組合,營造素樸卻豐滿的居家美學環境。充足的光線灑落慵懶,空間自然地浮現出松弛而美好的面容。 餐廳 ∥ 戶型拆除多余隔墻,讓客餐廚三者達到無縫銜接,公區域的開放式設計,在擴大各功能區使用面積的同時,也讓動線變得更加舒適。吧臺緊鄰餐桌,滿足多樣化場景需求。 簡約的餐桌椅搭配與吧臺一體成型的餐邊柜,來回取物變得非常方便,暗藏燈帶有助于烘托用餐的氛圍,增添情致。 廚房 ∥ 考慮到業主目前與父母同住的情況,開放式廚房的形式也能讓一家人的互動加深,增強彼此的聯系。寬裕的操作空間,讓烹飪時的心情也變得無比愉悅。各種功能性家電嵌入櫥柜,視覺干凈又利落。 臥室 ∥ 主臥延續中性的配色,背景墻通過燈飾、線條與材質的組合拉升層次,溫潤的木材調和空間冷色系,賦予居室溫柔的能量。 懸浮的木質床頭柜讓視覺變得輕盈,與側面開放格一體定制,立體且有延續性。 主臥是一個大套間,包含有衣帽間和書房。書房空間沿窗定制木質書桌,匹配到頂的玻璃柜,收納充足,光線適宜,閱讀、工作皆好。 次臥用灰色的硬包鋪敘靜謐安然的氛圍,讓人可以獨享自由和放松。 衛生間 ∥ 公衛做干濕分離,實木隱形門的效果使視覺效果更加統一完整。 白色的瓷磚放大空間感和明亮感,懸浮式臺盆柜也更方便日常的清潔,整潔的衛浴環境令人無比舒心。















免費
免費申請戶型規劃
專屬設計師免費1對1全程服務
已經有3776人申請
24小時免費咨詢電話
400-8800-618
你家預算
108080元